︎
Büro
Portfolio
Projekte
Mijaa Raummanufaktur
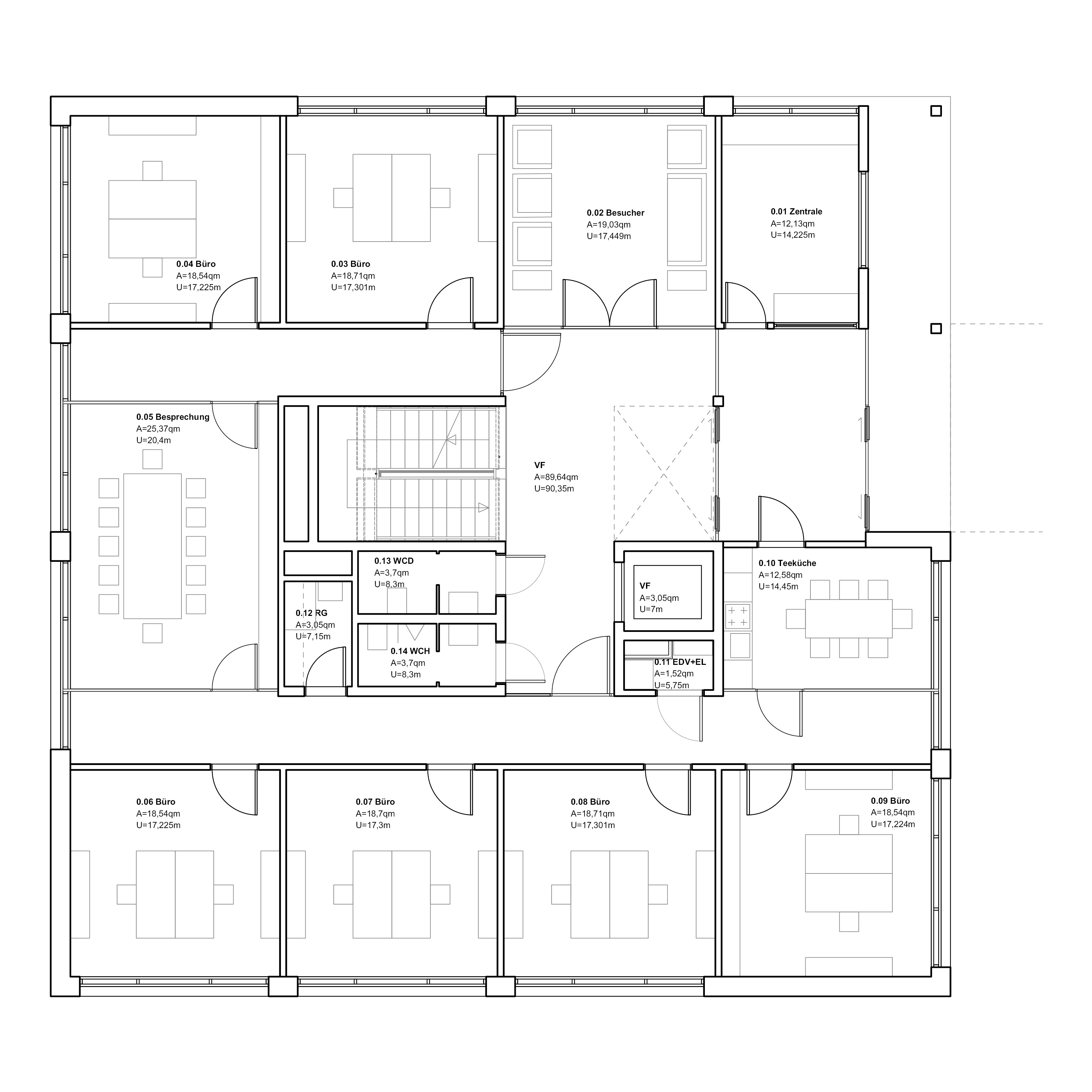
Odenwald - Chemie, Neckarsteinach
Verwaltungsgebäude, 2017-2018, mit Dr.-Ing. Reinhart Strümpfel
Impressum
Datenschutz